
防爆气动球阀
- 阀门型号:FBQ641F,FBQ641H
- 通径规格:DN15~DN300
- 结构形式:浮动直通式
- 阀体材质:铸钢WCB、不锈钢304、不锈钢316
- 公称压力:PN16、PN25、PN40、PN64
- 适用温度:-30℃~400℃
- 应用范围:可燃气体、蒸汽、油品、腐蚀性介质等
- 产品特点:带有防火、排静电装置,具有良好的防爆性能
防爆气动球阀概述:
防爆气动球阀是由球阀和配有防爆电磁阀及防爆限位开关的气动执行器连接组成,只需输入0.4-0.7MPa的气源即可对阀门进行开关两位操作。气动防爆球阀自身带有防火、排静电装置(球体、阀杆、阀体之间设有弹簧),不会存在与火花接触,具有良好的防爆性能,广泛应用于蒸汽、化工、燃气、油品等易燃易爆的工况当中。可根据管道的介质及场合不同,装配不同防爆等级的电磁阀和限位开关等其它电气控制元件。
防爆气动球阀作用原理:
气动防爆球阀执行器根据作用形式不同可分为单作用和双作用两种,单作用式靠弹簧自动复位,它的独特优点是一旦机械发生故障或不通气源的情况下,球阀将自动归位于打开或关闭的状态。双作用的开关动作都通过气源来驱动执行的;即通气开,通气关,断气保持原位。
防爆气动球阀技术参数:
防爆气动球阀技术参数:
| 公称通径 | DN15~DN300(mm) | ||
| 公称压力 | 1.6、2.5、4.0、6.4MPa | ||
| 连接形式 | 法兰式、螺纹连接、焊接 | ||
| 密封填料 | 聚四氟乙烯(PTFE)、金属石墨缠绕垫片 | ||
| 阀芯形式 | “O”型球形阀芯 | ||
| 驱动方式 | 气源驱动0.4-0.7Mpa(可带手动装置) | ||
| 泄露量Q | 软密封:零泄漏;硬密封:≤额定流量的10-5 | ||
| 阀体材质 | 碳钢、不锈钢304、316 | ||
| 阀板材质 | 碳钢、不锈钢304、316 | ||
| 适用范围 | 燃气、蒸汽、油品、腐蚀性介质等 | ||
| 执行机构 | 单作用(弹簧复位功能),双作用(气开气关) | ||
| 控制方式 | 开关型(开关两位控制)、调节型(阀门定位器4-20mA信号) | ||
|
防爆气动球阀可选附件:
执行器型号:GT、SR、ST、AT、AW系列单双作用气动执行器
供气压力:0.4~0.7MPa
气源接口:G1/4"、G1/8"、G3/8"、G1/2"
环境温度:-30~+70℃
作用形式:
单作用执行机构:气关式(B)--失气时阀位开(FO);气开式(K)--失气时阀位关(FC)
双作用执行机构:气关式(B)--失气时阀位保持(FL);气开式(K)-- 失气时阀位保持(FL)
可配附件:
定位器、防爆电磁阀、空气过滤减压器、保位阀、行程开关、阀位传送器、手轮机构等
|
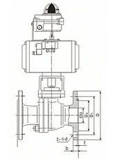
防爆气动球阀结构图
|

