
CARX复合式排气阀
- 质量稳定:实行全过程质量监控,细致入
微,全方位检测! - 价格合理:高效内部成本控制,减少了开
支,让利于客户! - 交货快捷:先进生产流水线,充足的备货,
缩短了交货期!
我们为您提供全套工程阀门解决方案销售热线:0510-82828883
邮箱:beifava@163.com
地址:江苏省无锡市新吴区新洲路222号
产品概述
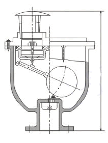
CARX复合式排气阀阀体为圆桶状,阀门内件包括不锈钢浮球、杠杆及阀瓣。本阀安装在泵出口处或配水管线中,用来排除集积在管中的空气,以提高管线及水泵的使用效率,当管内一旦产生负压时,此阀迅速吸入外界空气,以防止管线因负压而损坏。当管内开始注水时,阀瓣处在开启的位置,进行大量排气,当空气排完时,阀内充满水,浮球上升并带动阀瓣关闭,停止排气,当管内水正常输送时,如有少量空气聚集在阀内到相当的程度,阀内水位下降,此时空气由小孔排出。当水泵停止时,管内水流空或遇管内产生负压,此时塞头迅速开启,吸入空气,确保管线安全。介质温度:0-80℃。
主要技术参数
公称压力:1.0~1.6MPa
公称通径:DN25~32mm为螺纹连接;DN50~200mm为法兰连接
适用介质:水、油等非腐蚀性液体
适用温度:0~100℃
法兰标准:GB/T 17241.6 GB/T 9113
试验标准:GB/T 13927 API598
主要零部件材料
|
零件名称
|
阀体
|
阀盖
|
浮球
|
杆杆架
|
杠杆
|
塞头
|
|
材料 |
球墨铸铁
|
球墨铸铁
|
不锈钢
|
不锈钢
|
铝青铜
|
铝青铜
|
主要外形连接尺寸 单位:mm
|
DN
|
25
|
32
|
50
|
65
|
80
|
100
|
150
|
200
|
|
L
|
280
|
280
|
360
|
360
|
400
|
465
|
537
|
537
|
|
L1
|
176
|
176
|
208
|
208
|
244
|
275
|
332
|
332
|
|
H
|
330
|
330
|
475
|
475
|
552
|
623
|
686
|
686
|
产品尺寸
