
bz41w保温夹套闸阀
- 质量稳定:实行全过程质量监控,细致入
微,全方位检测! - 价格合理:高效内部成本控制,减少了开
支,让利于客户! - 交货快捷:先进生产流水线,充足的备货,
缩短了交货期!
我们为您提供全套工程阀门解决方案销售热线:0510-82828883
邮箱:beifava@163.com
地址:江苏省无锡市新吴区新洲路222号
产品描述
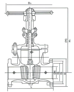
保温夹套闸阀主要用于石油、化工、冶金、制药等各类系统中,以输送常温下会凝固的高粘度介质。该系列阀门的夹套焊装于阀门的两法兰之间,阀门的侧面、底部设置有夹套的连接口。由于增加了夹套,此种阀门的连接法兰尺寸要比同一规格普通球阀的连接法兰大一到两个规格,但结构长度与同规格的阀门相同,夹套中可自由地流过蒸汽或其它热的保温介质,确保粘稠介质可顺畅地流过阀门。
标准规范
1、设计制造按GB12234-89
2、结构长度按GB12221-89
3、法兰尺寸按JB/T79-94
4、阀门检查和试验按GB13927
产品用途
保温夹套闸阀适用于公称压力PN1.0~10.0MPa、Class150~600、JIS10K~20K,工作温度-29~425℃(碳钢)、-40~500℃(不锈钢)的管路上作启闭用,并能保温和防止介质结晶。
选用不同的材质,可分别适用于重油、胶类、硝酸、醋酸、强氧化性介质及尿素等多种介质。
|
设计制造 |
结构长度 |
连接法兰 |
压力温度等级 |
试验与检验 |
|
GB12234 API600 |
厂标 |
ANSI B16.5 |
ANSI B16.34 |
API598 JB/T 9092 |
■阀体材料 A105 、 F5 、 F11 、 F22 、 304 、 304L 、 316 、 316L 、 LF2 等。
■驱动方式 手动。
■连接形式 承插焊、内螺纹、对焊、法兰。
产品范围
|
公称压力 或压力级 |
公称通径 DN/NPS |
|||||
|
15 |
20 |
25 |
32 |
40 |
50 |
|
|
1/2 |
3/4 |
1 |
1 1/4 |
1 1/2 |
2 |
|
|
Class800 |
· |
· |
· |
· |
· |
· |
|
Class150 |
· |
· |
· |
· |
· |
· |
|
Class300 |
· |
· |
· |
· |
· |
· |
|
Class600 |
· |
· |
· |
· |
· |
· |
|
Class900 |
· |
· |
· |
· |
· |
· |
|
Class1500 |
· |
· |
· |
· |
· |
· |
|
Class2500 |
· |
· |
· |
· |
· |
· |
附加说明
保温夹套闸阀的连接法兰规格一般大于阀门的公称通径。
用户无特殊说明,我公司一般按下表配制法兰
|
阀门公称通径DN |
15 |
20 |
25 |
32 |
40 |
50 |
65 |
80 |
100 |
|
法兰规格(mm) |
15×40 |
20×40 |
25×50 |
32×50 |
40×65 |
50×80 |
65×100 |
80×125 |
100×150 |
|
阀门公称通径DN(mm) |
125 |
150 |
200 |
250 |
300 |
350 |
400 |
450 |
500 |
|
法兰规格(mm) |
125×150 | 150×200 | 200×250 | 250×300 | 300×350 | 350×400 | 400×450 | 450×500 | 500×550 |
产品尺寸

