
橡胶瓣止回阀
- 质量稳定:实行全过程质量监控,细致入
微,全方位检测! - 价格合理:高效内部成本控制,减少了开
支,让利于客户! - 交货快捷:先进生产流水线,充足的备货,
缩短了交货期!
我们为您提供全套工程阀门解决方案销售热线:0510-82828883
邮箱:beifava@163.com
地址:江苏省无锡市新吴区新洲路222号
产品概述
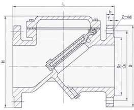
橡胶瓣止回阀主要由阀体、阀盖及橡胶瓣三种主要零件组成。橡胶瓣止回阀其中橡胶瓣由钢板、钢棒及强化尼龙布做衬底,外层披覆橡胶制成,阀瓣开关寿命可达100万次。橡胶瓣止回阀采用全流面积式设计,具有水头损失小,不易堆积杂务,维修简便等特性。该阀主要适用于给排水系统,可安装于出水口处,以防止倒流及水锤对泵损害。橡胶瓣止回阀还可安装在蓄水池进出水管的旁通管上,以防止池水倒流至给水系统中。
橡胶瓣止回阀主要技术参数
公称压力:1.0~1.6MPa
公称通经:50~600mm
适用介质:水及弱腐蚀性流体
适用温度:0~80℃
法兰标准:GB/T 17241.6 GB/T 9113
试验标准:GB/T 13927 AP 1598
橡胶瓣止回阀主要零部件材料
| 零件名称 | 阀体 | 阀盖 | 阀瓣 |
| 材料 | 铸铁 | 铸铁 | 钢材+强化尼龙布 |
橡胶瓣止回阀主要外形连接尺寸 单位:mm
| DN | 50 | 65 | 80 | 100 | 150 | 200 | 250 | 300 | 350 | 400 | 450 | 500 | 600 |
| L | 203 | 216 | 241 | 292 | 356 | 495 | 622 | 698 | 787 | 914 | 978 | 978 | 1295 |
橡胶瓣止回阀产品尺寸

