
电动矩形百叶式调节蝶阀
- 质量稳定:实行全过程质量监控,细致入
微,全方位检测! - 价格合理:高效内部成本控制,减少了开
支,让利于客户! - 交货快捷:先进生产流水线,充足的备货,
缩短了交货期!
我们为您提供全套工程阀门解决方案销售热线:0510-82828883
邮箱:beifava@163.com
地址:江苏省无锡市新吴区新洲路222号
用途和特点
电动百叶式蝶阀配置电动执行机构广泛应用于建材、治金、矿山、电力等生产过程,能自动控制或手动控制调节管路中介质流量。蝶板采用百叶多轴体结构,液体均匀,启闭力矩小,动作灵敏,性能可靠。
主要技术参数
|
公称压力PN
|
0.05MPa
|
泄漏率
|
≤3%
|
|
适用温度
|
-30℃~350℃
|
介质流量
|
≤25m/s
|
|
适用介质
|
粉尘、含尘气体
|
|
|
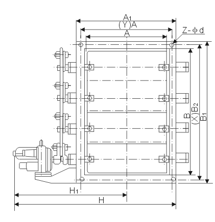
电动矩形百叶式调节蝶阀主要外形连接尺寸
|
A×B
|
A1×B1
|
A2×B2
|
L
|
L1
|
H1
|
H
|
b
|
Z-Фd
|
X
|
Y
|
|
320×180
|
375×105
|
400×240
|
180
|
245
|
580
|
735
|
8
|
164
|
5
|
3
|
|
320×250
|
375×395
|
400×330
|
180
|
245
|
625
|
825
|
8
|
164
|
5
|
3
|
|
400×200
|
455×255
|
500×330
|
200
|
245
|
610
|
805
|
8
|
168
|
5
|
3
|
|
400×320
|
455×375
|
500×420
|
200
|
245
|
870
|
915
|
8
|
168
|
5
|
3
|
|
500×200
|
555×255
|
600×300
|
220
|
245
|
610
|
805
|
8
|
168
|
5
|
3
|
|
500×400
|
555×455
|
600×500
|
220
|
245
|
370
|
915
|
8
|
208
|
5
|
5
|
|
630×320
|
685×375
|
730×420
|
220
|
245
|
610
|
805
|
10
|
208
|
7
|
3
|
|
630×400
|
685×455
|
730×500
|
220
|
245
|
710
|
995
|
10
|
248
|
7
|
5
|
|
800×400
|
855×455
|
900×500
|
240
|
300
|
670
|
945
|
10
|
248
|
7
|
5
|
|
800×630
|
855×685
|
900×730
|
240
|
300
|
710
|
995
|
10
|
288
|
7
|
7
|
|
1000×500
|
1070×570
|
1130×830
|
260
|
300
|
790
|
1075
|
10
|
24-23
|
7
|
5
|
|
1000×800
|
1070×870
|
1130×930
|
260
|
300
|
905
|
1270
|
10
|
28-23
|
7
|
7
|
|
1250×630
|
1320×700
|
1380×760
|
280
|
300
|
1005
|
1505
|
10
|
32-23
|
9
|
7
|
|
1250×1000
|
1320×1070
|
1380×1130
|
280
|
300
|
1105
|
1705
|
10
|
32-23
|
9
|
7
|
|
1400×800
|
1470×870
|
1530×930
|
300
|
385
|
1075
|
1575
|
10
|
36-23
|
11
|
7
|
|
1400×1250
|
1470×1320
|
1530×1380
|
300
|
385
|
1300
|
2025
|
10
|
40-23
|
11
|
9
|
|
1600×1000
|
1670×1070
|
1730×1130
|
320
|
385
|
1175
|
1775
|
10
|
36-23
|
11
|
7
|
|
1600×1250
|
1670×1320
|
1730×1380
|
320
|
385
|
1300
|
2025
|
10
|
40-23
|
11
|
9
|
|
1800×1250
|
1870×1320
|
1930×1380
|
340
|
420
|
1450
|
2175
|
10
|
44-23
|
13
|
9
|
|
1800×1400
|
1870×1470
|
1930×1530
|
340
|
420
|
1525
|
2325
|
10
|
48-23
|
13
|
11
|
|
2000×1250
|
2070×1320
|
2130×1380
|
360
|
420
|
1450
|
2175
|
10
|
48-23
|
15
|
9
|
|
2000×1800
|
2070×1670
|
2130×1730
|
360
|
420
|
1620
|
2520
|
12
|
52-23
|
15
|
11
|
|
2500×1800
|
2570×1870
|
2630×1730
|
420
|
450
|
1695
|
2595
|
12
|
56-23
|
17
|
11
|
|
2500×2000
|
2570×2070
|
2630×2130
|
420
|
450
|
1895
|
2995
|
12
|
64-23
|
17
|
15
|
|
2800×2500
|
2870×2570
|
2930×2630
|
440
|
450
|
2145
|
3195
|
12
|
72-23
|
19
|
17
|
|
3200×2800
|
3270×2870
|
3330×2930
|
480
|
480
|
2325
|
3825
|
12
|
80-23
|
21
|
19
|
|
3600×3200
|
3670×3270
|
3730×3330
|
520
|
480
|
2525
|
4225
|
12
|
88-23
|
23
|
21
|
|
4000×3600
|
4070×4670
|
4130×4730
|
560
|
480
|
2725
|
4825
|
12
|
100-23
|
27
|
23
|
产品尺寸

