
GA42H单杠杆安全阀
- 质量稳定:实行全过程质量监控,细致入
微,全方位检测! - 价格合理:高效内部成本控制,减少了开
支,让利于客户! - 交货快捷:先进生产流水线,充足的备货,
缩短了交货期!
我们为您提供全套工程阀门解决方案销售热线:0510-82828883
邮箱:beifava@163.com
地址:江苏省无锡市新吴区新洲路222号
用途特点
GA42H型安全阀适用于温度≤450℃的电站锅炉和压力容器上,防止压力超过允许最高值,介质可为蒸汽、空气。
主要零部件材料
| NO. | 零件名称 | C型 材料 |
| 1 | 阀体 | 碳钢 |
| 2 | 导向套 | 不锈钢 |
| 3 | 阀瓣 | 2Cr13 |
| 4 | 阀杆 | 2Cr13 |
| 5 | 杠杆 | 碳钢 |
| 6 | 重锤 | 铸铁 |
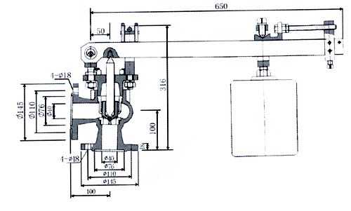
外形尺寸和连接尺寸(mm)
| 型号 | 公称通径DN(mm) | 尺寸 (mm) | |||||||||||||||||||
| do-z | D | D1 | D2 | D6 | f | f1 | b | z-d | L | H | 出口法兰式 | 出口承插式 | |||||||||
| DN’ | D2’ | n-M’ | D1’ | D’ | d1 | K2 | K3 | D3 | |||||||||||||
| GA42H6 | 50 | 40×1 | 165 | 125 | 100 | / | 3 | / | 16 | 48 | 840 | 412 | 125 | 175 | 86 | 120 | 235 | 120 | 145 | 162 | 190 |
| GA42H-25 | 50 | 40×1 | 165 | 125 | 100 | / | 3 | / | 20 | 48 | 840 | 412 | 125 | 175 | 86 | 120 | 235 | 120 | 145 | 162 | 190 |
| GA42H-40 | 50 | 40×1 | 165 | 125 | 100 | 88 | 3 | 4 | 20 | 48 | 840 | 412 | 125 | 175 | 86 | 120 | 235 | 120 | 145 | 162 | 190 |
| GA42H-64 | 50 | 40×1 | 175 | 135 | 105 | 88 | 3 | 4 | 26 | 4-23 | 840 | 420 | 125 | 175 | 86 | 120 | 235 | 120 | 145 | 162 | 190 |
| GA42H00 | 50 | 40×1 | 195 | 145 | 112 | 88 | 3 | 4 | 28 | 4-25 | 840 | 420 | 125 | 175 | 86 | 120 | 235 | 120 | 145 | 162 | 190 |
产品结构

