
FA49H型防爆波安全阀
- 质量稳定:实行全过程质量监控,细致入
微,全方位检测! - 价格合理:高效内部成本控制,减少了开
支,让利于客户! - 交货快捷:先进生产流水线,充足的备货,
缩短了交货期!
我们为您提供全套工程阀门解决方案销售热线:0510-82828883
邮箱:beifava@163.com
地址:江苏省无锡市新吴区新洲路222号
产品特点及用途
FA49H型防爆波安全阀,是一种即能消除水锤冲击波又能阻挡水锤冲击波的水用安全阀。它是由多组安全阀组成的产品,所起到的功能是单一安全阀无法达到的。该阀安装于给水工程管道的头部,以挡波和消波的方式相结合,防止水锤冲击波沿着管首进入系统给水工程内部,从而达到消除破坏性水锤的冲击波,超到保护系统设施正常运转和安全防护的目的。
主要性能范围
| 型号 | 公称压力 PN(MPa) | 工作压力(MPa) | 壳体试验压力(MPa) | 适用介质 | 工作温度 |
| FA49H0 | 1.0 | 0.2 | 1.5 | 清水 | 0~80℃ |
| FA49H6 | 1.6 | 0.25-0.5 | 2.4 |
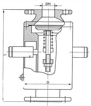
主要外形尺寸(法兰连接尺寸按GB4216的规定)
| DN | 50 | 65 | 80 | 100 | 125 | 150 | 200 |
| L | 390 | 440 | 440 | 500 | 520 | 535 | 600 |
| D | 160 | 160 | 160 | 220 | 270 | 270 | 375 |
产品尺寸

