
塑料电磁阀
- 质量稳定:实行全过程质量监控,细致入
微,全方位检测! - 价格合理:高效内部成本控制,减少了开
支,让利于客户! - 交货快捷:先进生产流水线,充足的备货,
缩短了交货期!
我们为您提供全套工程阀门解决方案销售热线:0510-82828883
邮箱:beifava@163.com
地址:江苏省无锡市新吴区新洲路222号
产品特点
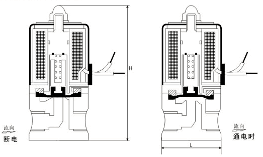
1、阀体为聚四氟乙烯(塑料王)制作,膜片为氟橡胶材料,具有强抗腐蚀能力;
2、采用下进上出全隔离膜片式结构,使介质与其它配件隔离;
3、适用于化学腐蚀合电化学腐蚀的酸硷溶液及有毒气体为工作介质的管路。如:线路板设备。
2、采用下进上出全隔离膜片式结构,使介质与其它配件隔离;
3、适用于化学腐蚀合电化学腐蚀的酸硷溶液及有毒气体为工作介质的管路。如:线路板设备。
技术参数
| 公称通径 | 3 | 10 | 15 | 20 | 25 |
| 工作压差 | 0.4MPa | 0.2 MPa | 0.1 MPa | 0.05 MPa | |
| 电源电压 | AC 220V、DC 220V | ||||
| 工作型式 | 常开式 | 常闭式 | |||
| 连接方式 | 软管接口 | G3/ | G1/2 | G3/4 | G1 |
| 介质温度 | 0-0℃ | ||||
| L(mm) | 67 | 69 | 72 | ||
| H(mm) | 63 | 137 | 140 | ||
| 动作方式 | 直动式(零压力启动、隔膜式结构) | ||||
产品结构

