
ZQDF蒸汽电磁阀
- 质量稳定:实行全过程质量监控,细致入
微,全方位检测! - 价格合理:高效内部成本控制,减少了开
支,让利于客户! - 交货快捷:先进生产流水线,充足的备货,
缩短了交货期!
我们为您提供全套工程阀门解决方案销售热线:0510-82828883
邮箱:beifava@163.com
地址:江苏省无锡市新吴区新洲路222号
产品用途
ZQDF(Y)系列蒸汽(液用)电磁阀是工业过程自动化控制系统用的执行器,它在接受电控信号后能自动开启或关闭阀门,实现对管道中流体介质的通断或流量调节控制,从而对系统中的温度、流量、压力等参数进行自动调节或远程控制。本系列电磁阀产品可广泛用于纺织、印刷、化工、塑料、橡胶、制药、食品、建材、机械、电器、表面处理等生产和科研部门以及浴室、食堂、空调等人们日常生活设施中。ZQDF系列主要用于空气、蒸汽、煤气等气体介质的控制;ZQDF-Y系列电磁阀主要用于自来水、蒸馏水、冷冻盐水、电镀废液等液体介质,同时也用于黏度小于4E的油类。
主要技术参数
| 参数\型号 | ZQDF-1 | ZQDF-2 | ZQDF-3 | ZQDF-1Y | ZQDF-2Y | ZQDF-3Y |
| 公称压力(Mpa) | 1.6 | |||||
| 工作压差(Mpa) | DN15-50 | 0~1.6 | ||||
| DN65-100 | 0.05~1.6 | |||||
| 介质种类 | 煤气、空气等 | 饱和蒸汽 | 过热蒸汽或高温气体 | 水油液体 | 热水 | 高温水、油 |
| 介质温度℃(mm) | ≤60 | ≤180 | ≤220 | ≤60 | ≤180 | ≤220 |
| 电源电压 | AC220V其余规格可作特殊订货 | |||||
| 使用寿命 | 按JB/T7352-94·F规定 | |||||
| 泄露量(ml/min) | 按JB/T7352-94·F规定 | |||||
| 功耗 | AC≤70VA DC≤60W | |||||
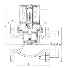
安装尺寸
| 公称通径DN | 内螺纹连接 | 法兰连接 | |||||||||
| 外形尺寸 | 内罗纹 | 外形尺寸 | 法兰尺寸 | ||||||||
| H | L | G | H | L | D | D1 | D2 | b | f | n-d | |
| 15 | 148 | 92 | 1/2 | 176 | 130 | 95 | 65 | 46 | 14 | 2 | 4-φ14 |
| 20 | 148 | 92 | 3/4 | 181 | 150 | 105 | 75 | 56 | 16 | 2 | 4-φ14 |
| 25 | 148 | 110 | 1 | 210 | 160 | 115 | 85 | 65 | 16 | 3 | 4-φ14 |
| 32 | 182 | 120 | 221 | 180 | 140 | 100 | 76 | 18 | 3 | 4-φ18 | |
| 40 | 182 | 140 | 230 | 200 | 150 | 110 | 84 | 18 | 3 | 4-φ18 | |
| 50 | 192 | 162 | 2 | 252 | 230 | 165 | 125 | 99 | 20 | 3 | 4-φ18 |
| 65 | 265 | 290 | 185 | 145 | 118 | 20 | 3 | 4-φ18 | |||
| 80 | 276 | 310 | 132 | 160 | 132 | 20 | 3 | 4-φ18 | |||
| 100 | 373 | 350 | 156 | 180 | 156 | 22 | 3 | 4-φ18 | |||
产品尺寸

