
Y43X固定比例式减压阀
- 质量稳定:实行全过程质量监控,细致入
微,全方位检测! - 价格合理:高效内部成本控制,减少了开
支,让利于客户! - 交货快捷:先进生产流水线,充足的备货,
缩短了交货期!
我们为您提供全套工程阀门解决方案销售热线:0510-82828883
邮箱:beifava@163.com
地址:江苏省无锡市新吴区新洲路222号
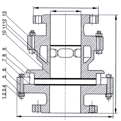
减压阀概述
我公司生产的比例式减压阀,外形美观、质量可靠,比例准确,工作平稳,既减动压也减静压。
该阀利用阀体内部活塞两端不同截面积产生的压力差,改变阀后的压力,达到减压目的。
我公司减压阀的减压比例是:2∶1,3∶1,4∶1,3∶2,5∶2等,亦可根据用户的要求设计特殊比例的减压阀。
减压阀主要技术参数
| 适用介质 | 水、气体 | |||
| 适用温度 | ≤90℃ | |||
| 压力误差 | ≤8% | |||
| 最小开启压力 | 2∶1 | 0.2MPa | ||
| 3∶1 | 0.3MPa | |||
| 连接形式 | 法兰、内螺纹 | |||
| 主要零件材料 | 阀体 | 锡青铜 | 不锈钢 | 铸铁 |
| 内件 | 锡青铜 | 不锈钢 | 锡青铜或不锈钢 | |
减压阀主要外形尺寸(法兰连接尺寸PN1.0MPa按GB4216.4-84标准,PN1.6MPa按GB4213.5-84标准)
| 公称通径DN(mm) | A | D3 |
| 25 | 232 | 115/125 |
| 32 | 246 | 140/150 |
| 40 | 256 | 150/155 |
| 50 | 270 | 165/175 |
| 65 | 306 | 185/200 |
| 80 | 320 | 210/230 |
| 100 | 340 | 240/265 |
| 125 | 400 | 275/300 |
| 150 | 429 | 310/350 |
| 200 | 358 | 355/400 |
| 型号 | 公称压力 | 公称通径DN(mm) | L |
|
YB43X0T (B型) |
1.0 | 50 | 85 |
| 65 | 102 | ||
| 80 | 122 | ||
| 100 | 140 | ||
| 125 | 160 | ||
| 150 | 178 | ||
| 200 | 230 | ||
|
YB43X6T (B型) |
1.6 | 50 | 85 |
| 65 | 102 | ||
| 80 | 122 | ||
| 100 | 140 | ||
| 125 | 160 | ||
| 150 | 178 | ||
| 200 | 230 |
| 公称通径DN(mm) | 尺寸(mm) | ||
| C | L | D | |
| 15 | 1/2" | 80 | 50 |
| 20 | 3/4" | 80 | 50 |
| 25 | 1" | 90 | 54 |
| 32 | 1 1/4" | 100 | 60 |
| 40 | 1 1/2" | 110 | 68 |
| 50 | 2" | 120 |
80
|
产品尺寸

